发货:3天内
一. 智能提升机的主要应用简介
智能提升机广泛应用于机械、汽车、家电等行业生产流水线各工位零部件的精确组装。主要是减轻产线人员工作强度,提高工作效率。https://www.xudro.cn/jixiebi/165.html
主要用途有:物料搬运、组件安装、模具更换、机械加工与制造、汽车装配线、精密设备维护。
二. 智能提升机的特点
1. 自如的速度控制:智能辅助提升设备可与操作人员同步移动,可按照操作人员选择的速度移动,可快可慢,从而非常适用于那些在一个负载中有时需要高速运行而有时又需要慢速而精准的操作环境。
2. 毫米级精准度:可实现提升速度小于0.3米/分的精确度,从而保正产线生产人员提升的精准定位要求。
3. 安全的选择:智通辅助提升设备安全可靠,极大的降低了工伤事故的发生。
4. 防反弹技术:该技术可在负载重量发生改变时,提升设备不发生偏移或反弹,从而减少了潜在的伤害事故发生。
5. 承重超载保护:提升设备在负载超过其额定起吊重量时会自动保护,无法提升。
6. 操作员到位功能:智通提升设备的滑动把手内置有光电传感器,除非操作人员发出运行指令,否则该传感器将不允许设备运行。
7. 悬浮模式功能:设备配置有多种用途的“悬浮模式”。只需对负载施加2kg的作用力,操作人员即可通过双手控制负载,在全程范围内进行精确定位。
8. 悬浮卸载模式功能:提升设备配置专门为卸载物体使用的“悬浮卸载模式”。操作员可通过双手控制负载达到精确的卸载。
9. 高性价比:智能辅助提升设备技术通过提高工人劳动效率和协助完成复杂作业,从面使工厂生产效率大大提高。
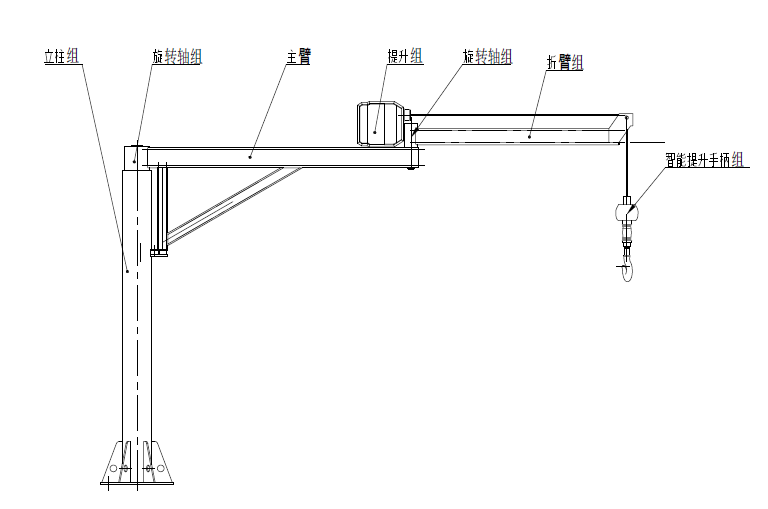
三. 智能提升机的主要部件构成说明
智能提升机,主要由伺服驱动器、伺服电机、减速机、传感器及相关结构件组成。
四、规格参数
| 产品型号 | qd100 | qd200 | qd300 | qd600 |
|---|---|---|---|---|
| 最大起重量 (kg) | 100 | 200 | 300 | 600 |
| 最大提升速度 (m/min) | 40 | 30 | 15 | 7.5 |
| 有效提升高度 (m) | 2.5 | 2.5 | 2.5 | 1.25 |
| 额定功率 (kw) | 0.75 | 1.5 | 1.7 | 2 |
| 主电源 (vac) | 220v±10% | 220v±10% | 220v±10% | 220v±10% |
| 保护装置 | 软限位 硬限位 | 软限位 硬限位 | 软限位 硬限位 | 软限位 硬限位 |
| 定位精度 (mm) | 0.05 | 0.05 | 0.05 | 0.05 |
| 噪音 (db) | ≤70 | ≤70 | ≤70 | ≤70 |
